Construction Change Order Template Free
Construction Change Order Template Free – Choose the most useful free construction change order forms for making changes to project contracts. These templates are customizable and available in Excel, Word, PDF and Google Sheets formats.
On this page, you’ll find a construction change order template, an engineering change order template, a contract change order template, and free downloadable construction change order templates.
Construction Change Order Template Free

This construction change order tracking template allows you to create a list of change orders along with associated costs and deadlines. You can easily customize this simple spreadsheet template to include additional information as needed. Track cumulative costs, schedule changes, and other details for each change order.
Free Construction Contract Template
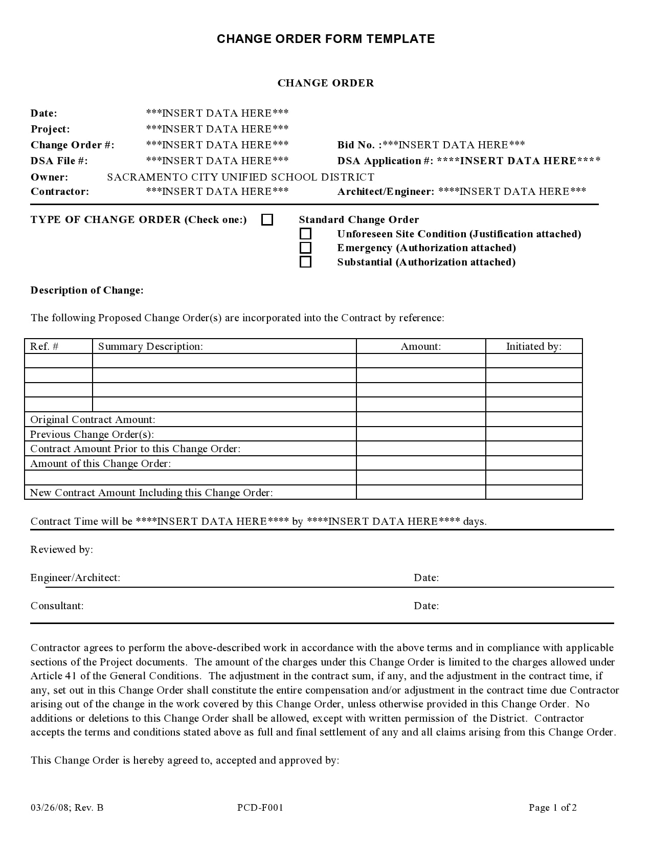
This template provides a sample change order for a construction project. The template includes a brief summary of project details, changes to specifications, justification for the changes you request, and cost and schedule information. Edit a Word or fillable PDF template to create your own printable edit form.

Many issues may require an engineering change order, from environmental and geotechnical issues to contractual errors and omissions. This template includes the name and location of the project, as well as the names of the owner, contractor, and engineer. You can add detailed descriptions of the requested changes and attach the necessary documents. The change order also includes a detailed list of work and price adjustments.
This simple and comprehensive change order form begins with the name of the party requesting the change and the names of other people interested in the construction project. It includes sections to describe the work you are requesting, the basis for the changes, detailed specifications and changes to the main contract in terms of cost and completion dates. Create detailed cost estimates for materials, labor, and equipment to calculate total costs.

Free Bid Proposal Template For Construction Estimates
Consult the original contract to create an accurate change order that specifies all the updates you need. There may have been miscommunications in the original contract, or problems may arise with material cost fluctuations, unexpected weather, or equipment breakdowns. Regardless of your reasons for changing the contract, this change order form has sections to confirm the signatures of the owner, contractor, and project manager.
This template provides a sample change order for a construction project. Whether you are working on a building or a residential project, modify the template, identify required changes, impacts and risks, schedule adjustments, and more. Attach the necessary documents to justify the changes you are requesting and include the signatures of all parties.

It is important to get clear information from contractors to avoid complications later. But when changes are necessary, this template includes job changes and additional costs, including materials, labor, and equipment. The form includes regular and labor rates for contractors and also offers a simple layout that you can download as a fillable Word or PDF form.
Construction Letter Templates
This short template focuses on changing the scope of work for a construction project. Use the form to add or remove jobs from the original contract. Describe how you will change the original scope of work and a complete list of work and price changes. Include an updated timeline to show how these changes will affect your project schedule and deadlines.

Change orders are important documents that require contractors to pay close attention. Learn about change order best practices, time-to-quantity differences, cost considerations, and more in our in-depth posts on the construction change order process.
From project closure to construction, keep all stakeholders informed with real-time collaboration and automatic updates so you can make better, more informed decisions, all on time and on budget.

Fillable Change Order Form
The platform makes it easy to plan, capture, manage and report on work, helping your team to be more efficient and get more done. Report on key metrics and stay in real-time visibility with cumulative reports, dashboards, and automated workflows built to keep your team connected.
There’s no telling how much more teams can do at the same time if they have clarity about the work being done. Try it for free today. Change orders are written orders to make changes to the scope of work described in the original project contract. Change orders must be reworked (or omitted), impact on budget, and updated schedule for completion. Change orders are common on construction projects, especially larger projects—there may be more than 50 of these orders placed on a single project.

There are many factors that contribute to the need for behavioral change. They are typically used when a client or contractor needs to make changes to complete a project or when the definition of what constitutes a completed project changes.
Construction Contract Template: Free Sample In 2021
Change orders, also known as “change orders”, are governed by contract law. These orders must meet the requirements of the main contract and the contract must refer to them. Generally, all parties to the contract (owner, contractor, subcontractors) must agree on change orders. However, if the changes are in accordance with the contractor’s change clause, the owner can implement them.

In this article, we’ll take a closer look at the causes, common strategies, and different types of change orders. Next, we’ll provide you with several free, downloadable templates that you can use to make changes to your next construction or engineering project.
If you’re creating a change order for the first time, or need to streamline existing forms, use our free change order templates to get started. Below you will find downloadable forms for different project types and purposes.

Sample Letter Of Extension Of Time For Construction (eot Letter)
Use this change order journal when you need to track all change orders throughout the lifecycle of a construction project. Describe the deadline for each change and request, the cost to date, the time added to complete the request, and the final amount.
Use this form to describe the requested changes, and break down the impact of the changes on additional and discretionary labor, materials, and equipment costs. Have the general contractor’s costs, subcontractor’s costs, and each determined and get final approval before proceeding with any changes.
![]()
Use this universal change order template to request work for any project that exceeds the scope of the original contract. Fill in the reason for the change order, location details, quantities and specifications, as well as previous and updated prices and times.
Variation Order Request Form Template: A Better Way To Manage Vor’s
For changes that will affect engineering, use this engineering change order template. It allows you to accurately calculate construction costs, project allowances and sales tax, preliminary and construction engineering, and summarize assumptions and risks. You can also attach a drawing or specification of the change and get the engineer’s name and signature.

Use this form to make changes from contractor to owner, general contractor to subcontractor, or contractor to general contractor. This allows the requester to describe the scope of the additional work, the amount of labor and materials required, what charges will be made (and how much), the impact on the schedule, and who approved the work.
Construction and facilities planning project managers can use this form to request or approve construction changes. This gives the requester space to explain why the change is needed (and why it is not part of the original contract), who requested it, how it will be funded, and how it will impact the project.

Engineering Change Notice Template (free, Editable Ecn Format)
Use this change request form for any construction or engineering project. In addition to requesting basic request and change information, it captures change information for specific project categories, including scope, schedule, cost, quality, risk management, communication, priority, and completion. You can also enter any suggestions for recommended activities.
Use this form when requesting changes to a construction project that affect the scope of work in the original contract. Specify each work order, addition, deletion or price change. Write down the initial price in the contract and the final price after the changes are made. You can also describe what has been removed and changed from the original scope of work, and the impact on the schedule and schedule.

Use this basic form to quickly and accurately request changes to a construction project. Enter labor and hourly costs, total owned and leased equipment, truck information, material cost and quantity, subcontractors, and then calculate your profit.
Free Excel Construction Templates For All Your Project Needs
Contractors can use this template to request changes to a construction project from the owner or general contractor. Include general equipment, materials and labor, determine the exact price and the subcontractor, and determine the exact price and appointment – and you’ll be ready to go in no time.

Like
Construction change order log template, construction change order log template excel, free construction change order template, construction change order template, construction work order template, construction contract change order template, construction change order template excel, construction change order form template, free construction work order template, free construction change order template excel, construction change order template word, free construction change order form template
Thank you for visiting Construction Change Order Template Free. There are a lot of beautiful templates out there, but it can be easy to feel like a lot of the best cost a ridiculous amount of money, require special design. And if at this time you are looking for information and ideas regarding the Construction Change Order Template Free then, you are in the perfect place. Get this Construction Change Order Template Free for free here. We hope this post Construction Change Order Template Free inspired you and help you what you are looking for.
Construction Change Order Template Free was posted in January 6, 2023 at 2:51 pm. If you wanna have it as yours, please click the Pictures and you will go to click right mouse then Save Image As and Click Save and download the Construction Change Order Template Free Picture.. Don’t forget to share this picture with others via Facebook, Twitter, Pinterest or other social medias! we do hope you'll get inspired by SampleTemplates123... Thanks again! If you have any DMCA issues on this post, please contact us!
