Creating A Construction Daily Report Form In 2023
Creating a Construction Daily Report Form in 2023
What is a Construction Daily Report Form?
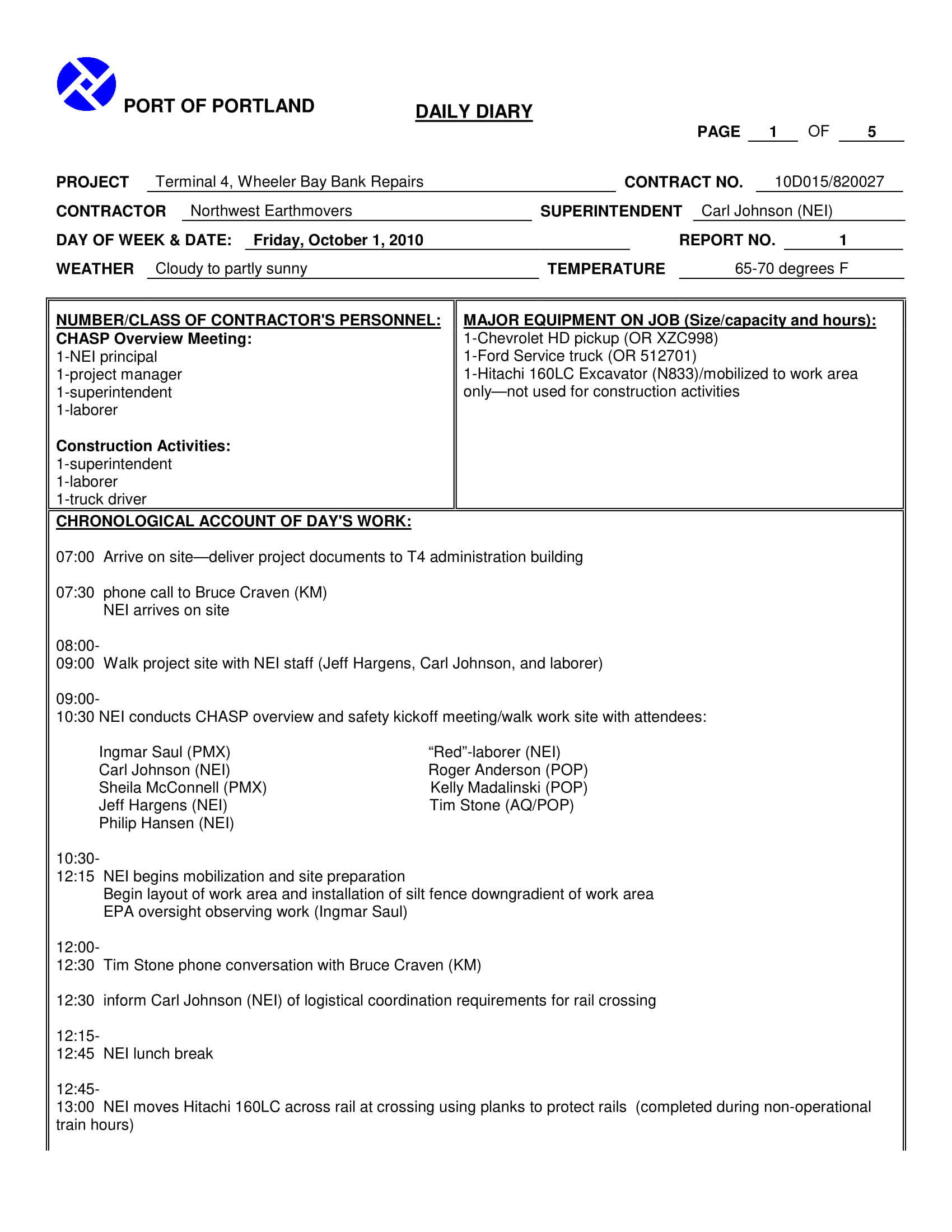
A construction daily report form is a document used to record the progress of a construction project, day by day. It is a log of activities, materials used, and the number of hours worked by members of the construction team. The report also includes a description of any safety issues that may have arisen. This type of document is essential for any construction project as it helps to track the progress of the project and identify any potential issues.
What Should be Included in a Construction Daily Report Form?
A construction daily report form should include the date and time, a summary of the day’s activities, a list of materials used, and the number of hours worked by each team member. It should also include any safety issues that were observed, and any other relevant information such as the weather conditions or any changes to the construction plan.
What are the Benefits of Using a Construction Daily Report Form?
Using a construction daily report form can provide a number of benefits. These include being able to track the progress of the project, being able to identify any potential issues, and being able to ensure that all necessary safety precautions are taken. Additionally, by having all of the information in one document, it can be easier to review the progress of the project, and to communicate with the construction team.
How to Create a Construction Daily Report Form in 2023
Creating a construction daily report form in 2023 is relatively easy. There are many tools available online that can be used to create and customize the form. These tools usually include templates which can be filled in with the relevant information and then printed out or emailed. The form can also be customized to include additional fields, such as photographs, drawings, or other relevant information.
Conclusion
Creating a construction daily report form in 2023 is a relatively straightforward process. By using the right tools and customizing the form to suit the needs of the construction project, it can be a great way to track progress and ensure that all safety precautions are taken. Additionally, it can be a great way to communicate with the construction team and to ensure that the project is completed on time and within budget.
Thank you for visiting Creating A Construction Daily Report Form In 2023. There are a lot of beautiful templates out there, but it can be easy to feel like a lot of the best cost a ridiculous amount of money, require special design. And if at this time you are looking for information and ideas regarding the Creating A Construction Daily Report Form In 2023 then, you are in the perfect place. Get this Creating A Construction Daily Report Form In 2023 for free here. We hope this post Creating A Construction Daily Report Form In 2023 inspired you and help you what you are looking for.
Creating A Construction Daily Report Form In 2023 was posted in April 8, 2023 at 10:46 am. If you wanna have it as yours, please click the Pictures and you will go to click right mouse then Save Image As and Click Save and download the Creating A Construction Daily Report Form In 2023 Picture.. Don’t forget to share this picture with others via Facebook, Twitter, Pinterest or other social medias! we do hope you'll get inspired by SampleTemplates123... Thanks again! If you have any DMCA issues on this post, please contact us!
